お問い合せ


<データ1>

 
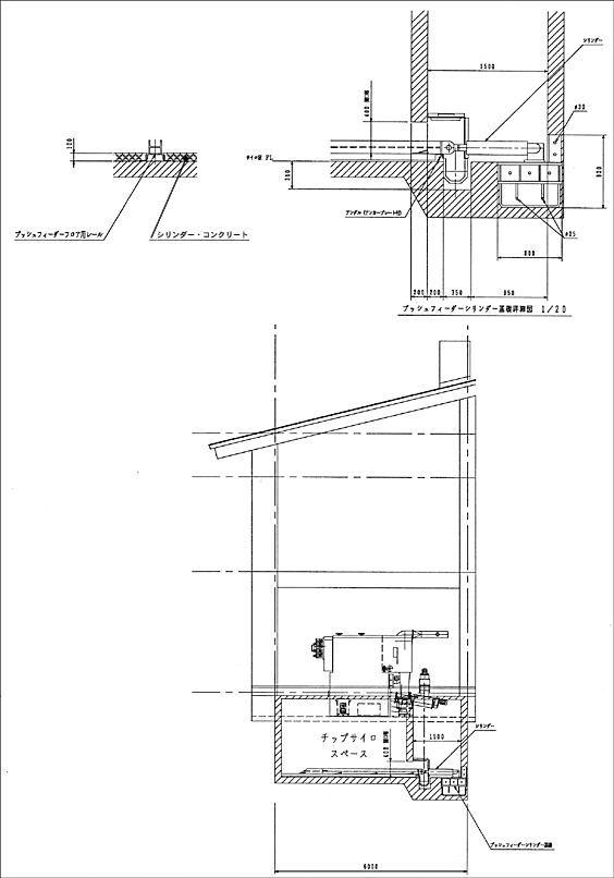
地下型サイロとそのプッシュフィーダー式サイロ駆動部の詳細図面の例

 サイロ駆動部の詳細図 1/2

設置例1/2

 

 

Copyright 2002-2003 TOMOE-TECHNO Co.,Ltd. All rights reserved.